E' stato fatto un concorso di idee ed ha "vinto" l'opera dell' arch. Venturelli ( per i dettagli chiedere ad Enzo :D )




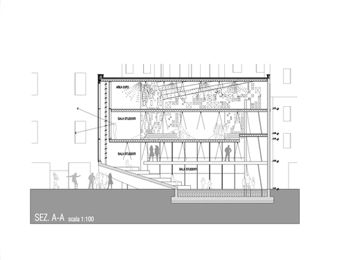
Qualche tavola...






I giochi di luce all'interno della struttura...



Pare che con l'approvazione appena avvenuta del nuovo PGT di Brescia si parta a breve (marzo?) con i lavori di costruzione.
L'opera è molto bella, la domanda è: visto che siamo in pieno centro, appena tolgono 1 sanpietrino e scendono di 1metro che cosa trovano? Si accettano scommesse su quanto ci metteranno a bloccare il cantiere per rinvenimento di reperti/resti. (anche perchè, vista la struttura, così a occhio le fondazioni saranno importanti)
Per chi volesse, ecco qualche link riguardante quest'opera
http://www.giornaledibrescia.it/blog/blog-di-nuri-fatolahzadeh/passeggiando-per-la-citta-1.637186/a-brescia-il-cubo-bianco-di-venturelli-a-bologna-l-auditorium-di-renzo-piano-1.729255#commenti_pubblici
http://btlb.blogspot.com/2010/04/first-prize-students-area-in-brescia.html
http://www.mariolabolani.it/wp-content/uploads/2010/04/20100325-Bresciaoggi-In-piazza-rovetta-arriva-il-cubo-Bianco.pdf







1 commento:
E poi a noi rompono le palle per la tonalità del colore delle facciate in zona storica....
Bet
Posta un commento